Другие новости Рязани и Рязанской области на этот час
Актуальные новости сегодня от ValueImpression.com


Опубликовать свою новость бесплатно - сейчас


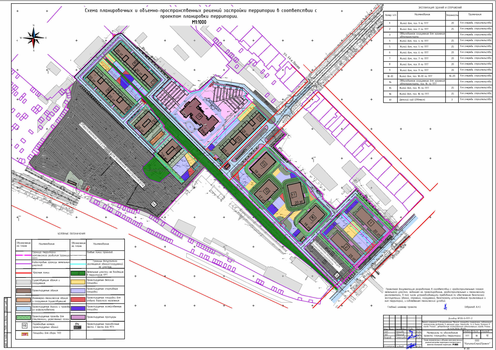
Об утверждении документации «Проект изменений в документацию «Проект планировки территории, подлежащей комплексному развитию, в границах улиц: Стройкова, 14-я Линия, Осипенко в городе Рязани», утвержденную постановлением администрации города Рязани от 14.04.2023 № 4684»

В соответствии со статьями 42, 45 Градостроительного кодекса Российской Федерации, статьей 12 Правил землепользования и застройки в городе Рязани, утвержденных решением Рязанской городской Думы от 11.12.2008 № 897-I, заключением от 13.03.2026 № 02-05-42-Исх о соответствии документации «Проект изменений в документацию «Проект планировки территории, подлежащей комплексному развитию, в границах улиц: Стройкова, 14-я Линия, Осипенко в городе Рязани», утвержденную постановлением администрации города Рязани от 14.04.2023 № 4684» требованиям градостроительного законодательства, подготовленным администрацией города Рязани, руководствуясь статьями 39, 41 Устава муниципального образования – городской округ город Рязань, постановлением администрации города Рязани от 12.12.2025 № 12189 «О делегировании отдельных полномочий главы администрации города Рязани первому заместителю главы администрации Лощинину Д.Н.», администрация города Рязани п о с т а н о в л я е т:

1. Утвердить документацию «Проект изменений в документацию «Проект планировки территории, подлежащей комплексному развитию, в границах улиц: Стройкова, 14-я Линия, Осипенко в городе Рязани», утвержденную постановлением администрации города Рязани от 14.04.2023 № 4684».

2. Управлению градостроительства и архитектуры администрации города Рязани (Наумов М.В.) обеспечить размещение документации, указанной в пункте 1 настоящего постановления, на официальном сайте администрации города Рязани в сети Интернет https://admrzn.ryazan.gov.ru в течение 7 дней со дня утверждения.

3. Управлению информационной политики и социальных коммуникаций аппарата администрации города Рязани (Щербакова И.И.) опубликовать настоящее постановление в газете «Рязанские ведомости» и документацию, указанную в пункте 1 настоящего постановления, в сетевом издании «Рязанские ведомости» https://rv-ryazan.ru в течение 7 дней со дня издания.

4. Настоящее постановление вступает в силу со дня его официального опубликования.

5. Контроль за исполнением настоящего постановления оставляю за собой.

 

Первый заместитель главы администрации Д.Н. Лощинин

 

Проект планировки территории, подлежащей комплексному развитию, в границах улиц: Стройкова, 14-я Линия, Осипенко в городе Рязани

Приложение № 1

Приложение № 2

Приложение № 3

Читайте на сайте

Другие проекты от 123ru.net








































Другие популярные новости дня сегодня


123ru.net — быстрее, чем Я..., самые свежие и актуальные новости Рязани — каждый день, каждый час с ежеминутным обновлением! Мгновенная публикация на языке оригинала, без модерации и без купюр в разделе Пользователи сайта 123ru.net.

Как добавить свои новости в наши трансляции? Очень просто. Достаточно отправить заявку на наш электронный адрес mail@29ru.net с указанием адреса Вашей ленты новостей в формате RSS или подать заявку на включение Вашего сайта в наш каталог через форму. После модерации заявки в течении 24 часов Ваша лента новостей начнёт транслироваться в разделе Вашего города. Все новости в нашей ленте новостей отсортированы поминутно по времени публикации, которое указано напротив каждой новости справа также как и прямая ссылка на источник информации. Если у Вас есть интересные фото Рязани или других населённых пунктов Рязанской области мы также готовы опубликовать их в разделе Вашего города в нашем каталоге региональных сайтов, который на сегодняшний день является самым большим региональным ресурсом, охватывающим все города не только России и Украины, но ещё и Белоруссии и Абхазии. Прислать фото можно здесь. Оперативно разместить свою новость в Рязани можно самостоятельно через форму.



Новости 24/7 Все города России




Загрузка...


Топ 10 новостей последнего часа в Рязани и Рязанской области






Персональные новости

123ru.net — ежедневник главных новостей Рязани и Рязанской области. 123ru.net - новости в деталях, свежий, незамыленный образ событий дня, аналитика минувших событий, прогнозы на будущее и непредвзятый взгляд на настоящее, как всегда, оперативно, честно, без купюр и цензуры каждый час, семь дней в неделю, 24 часа в сутки. Ещё больше местных городских новостей Рязани — на порталах News-Life.pro и News24.pro. Полная лента региональных новостей на этот час — здесь. Самые свежие и популярные публикации событий в России и в мире сегодня - в ТОП-100 и на сайте Russia24.pro. С 2017 года проект 123ru.net стал мультиязычным и расширил свою аудиторию в мировом пространстве. Теперь нас читает не только русскоязычная аудитория и жители бывшего СССР, но и весь современный мир. 123ru.net - мир новостей без границ и цензуры в режиме реального времени. Каждую минуту - 123 самые горячие новости из городов и регионов. С нами Вы никогда не пропустите главное. А самым главным во все века остаётся "время" - наше и Ваше (у каждого - оно своё). Время - бесценно! Берегите и цените время. Здесь и сейчас — знакомства на 123ru.net. . Разместить свою новость локально в любом городе (и даже, на любом языке мира) можно ежесекундно (совершенно бесплатно) с мгновенной публикацией (без цензуры и модерации) самостоятельно - здесь.



Загрузка...

Загрузка...

Экология в Рязанской области




Путин в Рязанской области

Лукашенко в Беларуси и мире



123ru.netмеждународная интерактивная информационная сеть (ежеминутные новости с ежедневным интелектуальным архивом). Только у нас — все главные новости дня без политической цензуры. "123 Новости" — абсолютно все точки зрения, трезвая аналитика, цивилизованные споры и обсуждения без взаимных обвинений и оскорблений. Помните, что не у всех точка зрения совпадает с Вашей. Уважайте мнение других, даже если Вы отстаиваете свой взгляд и свою позицию. Smi24.net — облегчённая версия старейшего обозревателя новостей 123ru.net.

Мы не навязываем Вам своё видение, мы даём Вам объективный срез событий дня без цензуры и без купюр. Новости, какие они есть — онлайн (с поминутным архивом по всем городам и регионам России, Украины, Белоруссии и Абхазии).

123ru.net — живые новости в прямом эфире!

В любую минуту Вы можете добавить свою новость мгновенно — здесь.






Здоровье в Рязанской области


Частные объявления в Рязани, в Рязанской области и в России






Загрузка...

Загрузка...





Друзья 123ru.net


Информационные партнёры 123ru.net



Спонсоры 123ru.net